Release news Naviate for Revit
Naviate Architecture February Release 2023.1.15 and 2024.7.1
Release news for Naviate Architecture. Highlights include the new features Pattern Editor and Curtain Wall Elevations, updates to Room Drawings, Zone Views, Modify Ribbon and GDI Resource Error.
-
Feature
-
Feature
-
Update
-
Update
-
Update
-
Fix
New! Pattern Creator
Create custom Patterns using custom line designs.
With this new feature, you can create Patterns using custom designs made with Detail Lines or Model Lines. These Patterns can be saved for future use, and you can Export or Import .pat files to apply them to any project. Additionally, you can include the creation of Filled Regions from the Pattern. When this option is enabled, a Filled Region preview will be automatically generated in the same/active View.

New! Curtain Wall Elevations
Create dimensioned Elevations from section view types for preselected Curtain Walls.
Select one or more Curtain Walls to generate individual Elevation views from Section View Types for each Curtain Wall. Customize the Views by applying View Templates and adding Dimensions.
Note:
- Be able to create Curtain Wall Elevations using Elevation View Types will be coming soon!

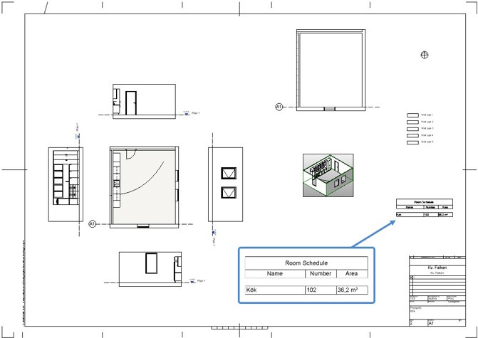
Room Drawings
The Room Drawings UI has been updated with the addition of new functionalities:
- Placing Referenced Callouts
- Match Template Sheet

Utilize the 'Match Template Sheets' option to place Views on Sheets.
You can now use an existing Sheet as a template for View placement, with Schedules, Legends, and Symbols automatically copied, and the view rotation preserved. This functionality is available only for Elevation Views (4 Walls).

Place Refereneced Callouts to created Ceiling and Floor plans.
You can now place Referenced Callouts to create Ceiling and Floor plans. To do so, select the desired Floor or Ceiling Plan from the dropdown where the Callout will be placed. If you prefer to create Views without Callouts, simply choose 'None' from the dropdown.

Crop offset improvement enables the use of the 'Filter by Sheet' Schedule option.
You can now use the 'Filter by Sheet' Schedule option, with all adjacent Rooms automatically hidden.

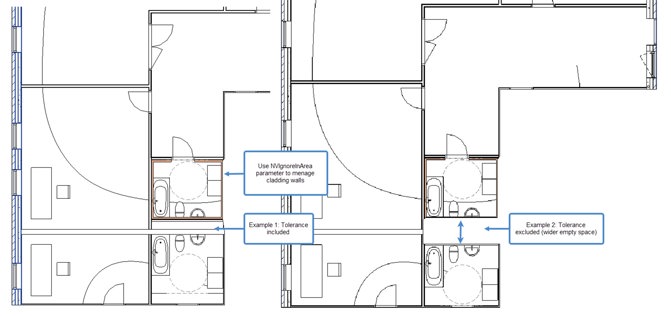
Zone Views
Improved Zone Views placement by merging Zones according to tolerance values.
Zones with small empty spaces between them will now be merged based on the tolerance value. Additionally, you can use the NVIgnoreInArea parameter to manage Cladding Walls. This improvement is also applied to 'Create Zone Areas' when creating Zones using Gross Area.

Create Zone Views based on rotated Scope Boxes.
Created Zone Views can now align with the Scope Box rotation applied to the Floor plan.

Modify Ribbon
Run any tool that supports preselection from the Modify tab.

Fixes
- Door/ Window UIDs - Fixed issue with 'Use Rooms from Phase' option.
- Room Drawings - Fixed issue with the sheet creation order.
- Wall Perimeter - Fixed issue with the NVNetPerimeter value.
Media gallery Naviate Architecture 2025.1.0
Scroll through for details.